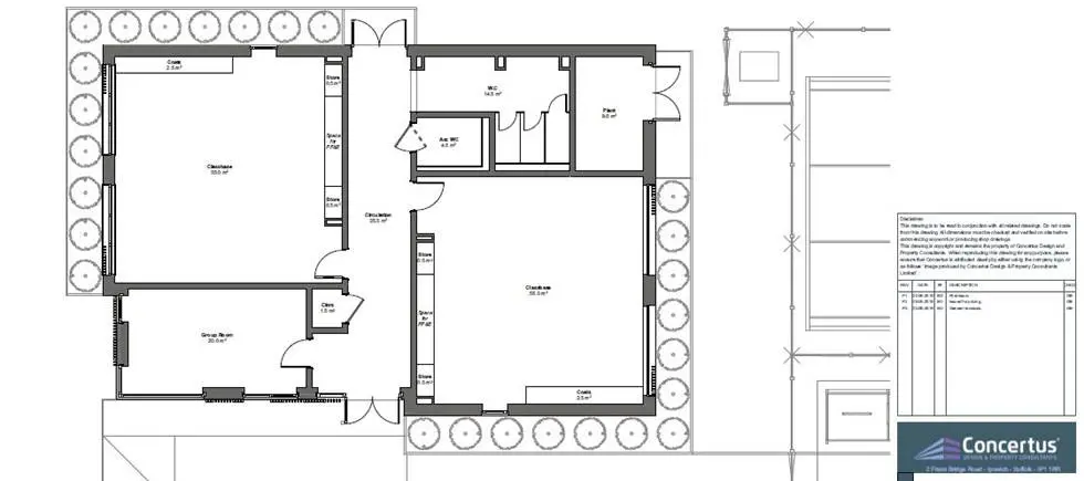
Construction of two new classroom detached teaching block, including a group room and associated external works inclusive of 6 new carparking spaces. These works will increase the schools capacity to 210 places.

Client
Suffolk County Council

Completion Date
June 2020

Design Team
Concertus Design and Property Consultants

Completion Date
June 2020

Value
£653K